サックス・ピアノ・ヴォーカル室(高橋様)
「広縁のリフォーム」+「防音工事」を相談時から親身にご対応いただきました
| サックス・ピアノ・ヴォーカル室(高橋さま) | |
| 施工種別: | ピアノボーカル・声楽サックス |
| 建物タイプ: | 戸建て、一軒家 |
| 地域: | 神奈川県 |
| 広さ: | 4.9畳 |
| 2021年8月に神奈川県厚木市にある閑静な住宅街で、高橋さまのサックス・ピアノ・ヴォーカル室が誕生しました。 築20年以上の一軒家に、どのように防音室が完成したのでしょうか。 | |
-
夢のサックス演奏で感じた、防音対策の必要性
マイホームに防音工事を実施
高橋様は2021年4月にお問合せいただき、6月にご契約いただきました。
6.8畳だった和室は、4.9畳の防音室へ。
当日は貴重な土日に関わらず、ご夫婦とご次男様が取材にご対応いただきました。
ご主人はサックス、奥様はピアノをご趣味でされております。
ご次男様はヴォイストレーナーとしてご活動されております。
サックス奏者の渡辺貞夫氏に憧れ、ご自身の夢へ
ご主人が始めた夢のサックス。しかし・・・
主人は若い頃からサックスに憧れを抱いていました。
定年退職後、やっと始めた練習も、今度は近所への配慮から控えめな音出し。
せっかく練習できる時間がありながら、あれではいい音を出せないと思い、防音室を検討するようになりました。 -
防音もリフォームも相談可能な環境スペースに、依頼を決定

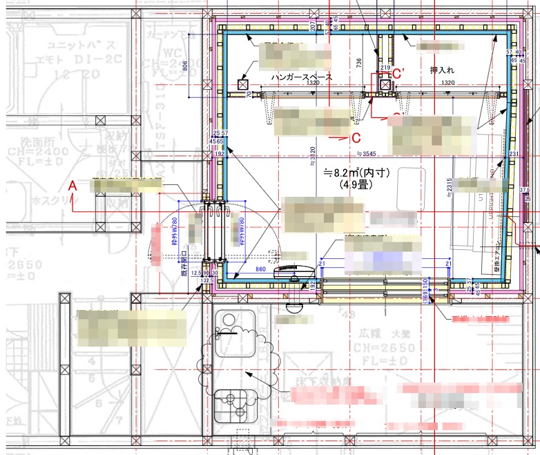
お問合せ時にいただいた図面『和室(赤枠). 広縁(青枠)』
防音とリフォームの相談に乗ってくれる会社を探していました
今の防音室になる前は、和室で仏壇が置いてある部屋でした。
その部屋の横には広縁がありました。
防音対策も箱型か工事の2択の中で、防音工事を選んだ理由は、リフォームも一緒にしたかったからです。
和室にあった収納もしっかり確保したいし、仏壇も場所を変えたい。
和室と広縁の両方のリフォーム事情から相談に乗ってくれる会社を探していたところ、環境スペースを見つけました。
弊社提案の防音室と広縁の設計図
懇切親切なメール対応に「とても良いな!」と思いました
まずホームページに施工数や施工実績、様々な種類の防音工事を行っていること、お客様の写真など、参考になる情報が沢山あったため好印象でした。
最初にメールをさせてもらった際に、リフォームで悩んでいる旨を伝えたところ、とても親切に対応くださり、本当に良いなと思いました。
また、その後のレスポンスもとても早かったです。
遮音性能をよく考えてくださり、様々なシミュレーションをして提案してくれました。
和室やふすま、仏壇など、今あるものを防音を兼ねてリフォームの検討をしていたので、環境スペースに相談して本当に良かったです。 -
お盆までに完工。外からの遮音にも感動しました。

換気口も遮音対策を実施
営業の方だけでなく、現場の方も好印象でした
7月半ばに着工し、真夏の暑い中、本当によくやってくれました。
現場制作の矢部さんがキレイに養生してくれたお陰もあり、少し心配していた粉塵なども気になりませんでした。
職人さんも本当に良い方ばかり。
電気工事担当の紺野さんが、防音室内にインターフォン設置を勧めてくださったこともあり、今も満足しています。
コンセント1つ取っても私達のことを考えてくださる、その事細かい気遣いが本当に嬉しかったです。
近隣の方々への騒音も、気になるほどではありませんでした。
高橋様からお茶やアイスをいただきました
内側の音漏れだけでなく、外からの遮音にも感動
防音室になるということは、部屋が狭くなることを意味します。
しかし担当の小野口さんが、ギリギリまで広くするように対応してくれた上に、収納も残してくれました。
これにはとても喜びました。
広縁のミニキッチンを活かすためにも、キッチンごと新替し、開口部である換気口も遮音対策を実施。
完工まで滞りなく進んだため、工期は一ヶ月以内に収まりました。
息子が夜に仕事を終えて昼に休む際に、周囲の音が気になるときは防音室で就寝していました。(笑)
つくった防音室は内側からだけではなく、外からの音も何も聞こえない、すごい空間であることに気がついたのです。 -
家族全員、遮音性能と音響に大満足しています!

東京在住のご長男様 愛用の電子ドラム
サックスの響きに感動!他の楽器も申し分ありません。
防音室が完成して、サックスを早速吹いてみると、音響の良さに感動しました。
ピアノも弾いてみて、生の音の心地良さと解放感がとても気持ち良い。
歌もマイクを通すとライブ感があります。
長男も防音室に感動していました。
どの音源も良いのですが、やはりサックスの響きが最も素晴らしく、非常に満足しています。
防音室のちょうど2階に寝室があるのですが、息子の歌やピアノの練習も一切聞こえません。
広縁を活用してレコーディングを検討中
家の中に別空間!家族全員で満足しています!
主人は1日約1時間ほど、サックスの練習をしています。
音楽鑑賞も気持ちよくて、練習が終わったら聴き入ってしまうのです。
遮音性能も音響も良くて、本当に素晴らしい空間を持てたなと思います。
防音室は良い意味で生活感がなく「音響に秀でた別空間」です。
コロナ禍の今だからこそ、防音室で楽しめて、本当によかったと思います。
いつかこの部屋で、家族4人で合奏できたら面白そうですね!
※取材&記事作成:川名














