ピアノ室(辻本様)
子供の自立を機会に、長年の夢だったピアノ室をつくりました
| ピアノ室(辻本様) | |
| 施工種別: | ピアノ |
| 建物タイプ: | マンション |
| 地域: | 神奈川県 |
| 広さ: | 5.8畳 |
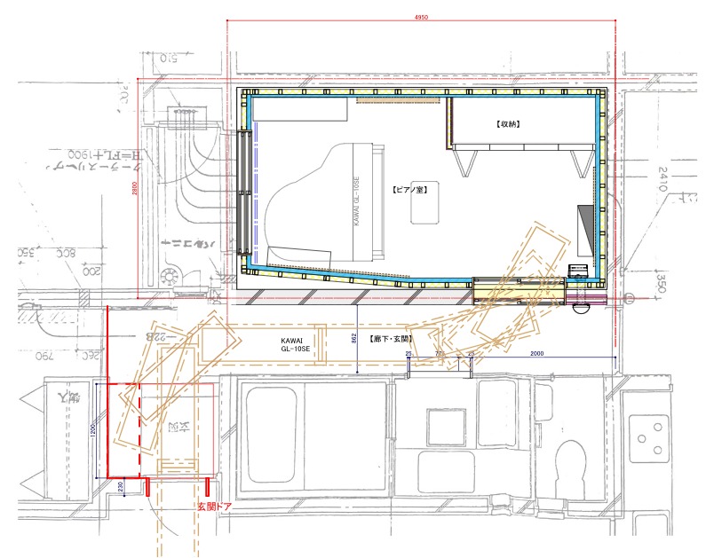
| 2021年6月に神奈川県横浜市の閑静な住宅街で、辻本さまのピアノ室が誕生いたしました。 高い防音性能が求められるマンションで、どのような対策が練られ、工事が進んだのでしょうか。 | |
-
「家族への騒音」と「自身の健康面」から、防音室の必要性を感じた

ピアノ室の窓からは、自然の景色が広がりました
マンションの自室に防音工事を実施
辻本様は2021年2月にお問い合わせいただき、5月にご契約いただきました。
同月から工事が始まり、6月に完工。
7.2畳だったお子様の部屋は、5.8畳のピアノ室に生まれ変わりました。
防音工事は約350万円でご契約。
防音室外のリフォームも追加にてご要請をいただき、約50万円の追加契約をいただきました。
当日はお手製の干し柿と美味しい日本茶で迎えてくださり、取材にご対応いただきました。
3歳からピアノをされていた奥様
ヘッドフォンと消音機で感じた、騒音と健康の”限界”
自宅でアップライトピアノを28年間使い続けてきました。
当時はリビングにピアノを設置し、消音機を取り付け、ヘッドフォンを着用して弾いていました。
しかし鍵盤を叩くカタカタ音が、どうしても家族に聞こえてしまいます。
なにかと気遣ってくれましたが、悪気を感じながら弾いていました。
また騒音だけでなく、ヘッドフォン付きで3時間ばかり弾いていると、めまいを起こすようになりました。
体調にも悪影響が出始めたとき、防音室を考えるようになったのです。 -
子供の自立を機会に、防音工事を決断

ピアノ搬入を考慮した設計図
家庭の「転機」を「好機」に
防音室を考え始めたとき、ちょうど子供が家を出る予定を立てていました。
かねてより、ピアノを24時間弾きたいと強く思っていたため、「子供の自立」を「夢を叶えるチャンス」と好機に捉え、主人の承諾を得ました。
周りに防音室を作った人がいなかったため、自身でインターネット検索をして、環境スペースのサイトに辿り着いたのです。

ご契約後、直ぐに着工
相談の決めては「件数」「お客様事例」「明確な値段表示」
環境スペースのホームページは、お客様の声や明確な値段表示が掲載されていて、とても親切でした。
ウチに似た状況の方も掲載されていたため、とても参考になりました。
横浜市の金沢区まで来てくれるか心配でしたが、問い合わせをしたところ、快く相談に乗ってくださったのです。
当初は立派な防音室を望んでいませんでした。
しかし担当の小野口さんから、集合住宅の防音を的確に教えていただき、どのような工事を進めたらしっかりとした防音できるか、ピアノを心地よく弾けるかをご提案いただきました。 -
滞りなく、要望通りの日程で工事が完了

工期は約1ヶ月半
防音だけではなく、内装面も自由に設計していただきました
いざ着工が始まると、環境スペースの現場制作の方も明るくマナー良く、工事に取り組んでいただいたため安心しました。
マンションは収納に苦労することがあり、これ以上は減らしたくない気持ちから、クローゼット設置を依頼。
他にも分電盤や配線、コンセントなどの見えない箇所も綺麗にしていただきました。
懸念していた換気設備も、最も納得の行くかたちで設置していただきました。
防音だけではなく、希望通りの内装にしてくださった所も嬉しい点です。
デザイン性があり、上質な吸音材を使用
要望通り、梅雨前には施工完了
大切なピアノのことを考え、梅雨前には施工を終わらせい気持ちがありました。
こちらの要望通り、6月には完工。
ピアノ室の設計施工からデザインまで、一所懸命考えていただいて、一番良い形で出来上がりました。
私も主人も住みながら、子供部屋の防音工事を依頼しましたが、工事中のストレスは一切ありませんでした。
無事に完成して本当に良かったです! -
夢に描いてきたピアノ室の完成。快適な空間に大満足!

自分だけの”お城”を自由気ままに満喫
騒音も体調不良も解消!毎日、”生の音”を満喫しています
夢のピアノ室ができた今、毎日ワクワクしながら使用しています。
体調に悪影響を及ぼしたヘッドフォンからも解放され、健康的です。
またヘッドフォンだと常に機械のような音になるので、生の音に満足しています!
友人に紹介したところ大絶賛をいただきました。
当初、防音室のイメージとは、音楽室の練習室でした。
しかしレイアウトが自由な上に、とても綺麗です。
吸音材もデザイン可能なことから大満足しています。
ぜひ検討されている方は、勇気を持って一歩進み、防音室という素晴らしい空間を手にしてみても良いと思います。
担当の小野口と共に
定年後は大切な主人と、夢のピアノ室を楽しみます。
これまで奏会や音楽教室など、「他の誰か」のために弾いてきました。
今まで周りの方々を大切にしてきたた分、今後は自分のために大好きなピアノを弾き続けます。
主人はテレワークにも使用することがありますが、仕事を引退後は、昔やっていたギターを再開する予定です。
夫婦特別のピアノ室は、子供の自立や家族の思い出など、語り尽くせないほどの想いが込められています。
これからもその想いを大切に抱きながら、毎日ワクワクした気持ちで主人と歩んでいきたいと思います。
※取材&記事作成:川名














